Nhà cấp 4 có gác lửng 3 phòng ngủ rất phù hợp với những hộ gia đình có đông thành viên. Dưới đây là một số mẫu nhà cấp 4 có gác lửng 3 phòng ngủ đẹp, được thiết kế khoa học mang đến không gian sống rộng rãi, tránh sự chật chội, mời các bạn tham khảo.
Mẫu nhà cấp 4 có gác lửng 3 phòng ngủ 5×20m2
Đây là một mẫu nhà cấp 4 có gác lửng 3 phòng ngủ được thiết kế đơn giản, hiện đại, và chi phí xây dựng thấp.


Mặt tiền của ngôi nhà cấp 4 có gác xép này được thiết kế hiện đại với hình khối kiến trúc kiên cố và mang tính thẩm mỹ cao. Bậc tam cấp hiện đại được ốp đá tự nhiên, hiên chính được lát gạch trắng kết hợp với trụ cột vuông ở hai bên tạo ra tổng thể cân bằng cho công trình. Hệ thống mái thái của ngôi nhà được thiết kế giật cấp hiện đại.
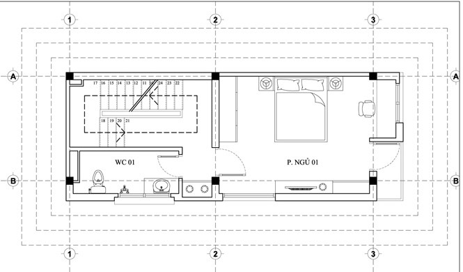
Mặt bằng công năng tầng trệt gồm: Phòng khách, cầu thang thông tầng lửng, phòng bếp và bàn ăn, nhà vệ sinh chung và 1 phòng ngủ được bố trí ở góc trong cùng của công trình.

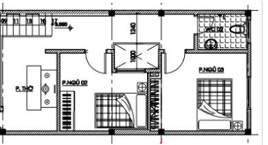
Mặt bằng công năng tầng lửng gồm: Phòng thờ ngay cạnh sảnh thang thông tầng, phía trong là 2 phòng ngủ và một nhà vệ sinh chung.

Nhà cấp 4 có gác lửng 3 phòng ngủ mái thái giá rẻ
Mẫu thiết kế nhà cấp 4 có gác lửng mái thái giá rẻ hướng Đông, phía trước có sân ngoài rộng.

Không gian tầng trệt có diện tích sàn 120m2 gồm: Phòng khách, cầu thang, tiểu cảnh giếng trời, phòng bếp liên thông với phòng ăn, 1 phòng ngủ và nhà vệ sinh chung.

Tầng lửng được thiết kế gồm 1 phòng thờ kết hợp với sinh hoạt chung, 2 phòng ngủ, phòng giặt phơi, phòng vệ sinh.

Nhà cấp 4 có gác lửng 3 phòng ngủ mái thái

Mặt tiền bên ngoài nhà cấp 4 được thiết kế theo phong cách hiện đại. Màu sắc chủ đạo của ngôi nhà là màu xám xanh kết hợp với các đường sọc kẻ màu trắng cộng với màu xám nâu giúp ngôi nhà thêm nổi bật.

Tầng trệt gồm: Phòng khách, bếp + phòng ăn, 2 phòng ngủ nhỏ được thiết kế trong cùng đảm bảo sự yên tĩnh giúp cho việc nghỉ ngơi, trong cùng là nhà vệ sinh chung + sân phơi nhỏ.

Mặt bằng tầng lửng: Phòng ngủ rộng rãi + WC.
Học IT










Công nghệ
Microsoft Word 2013
Microsoft Word 2007
Microsoft Excel 2019
Microsoft Excel 2016
Microsoft PowerPoint 2019
Google Sheets
Lập trình Scratch
Bootstrap
Hướng dẫn
Ô tô, Xe máy