Dưới đây là những mẫu biệt thự 2 tầng đẹp được thiết kế (kèm bản vẽ) theo phong cách hiện đại, đơn giản nhưng ấn tượng, trẻ trung và gần gũi với thiên nhiên. Mời các bạn tham khảo để có sự lựa chọn phù hợp nhất cho ngôi nhà của mình.
1. Biệt thự song lập đẹp
Biệt thự song lập là 2 ngôi nhà nằm chung trên một mảnh đất, có 1 mặt tường chung nhưng có lối đi riêng biệt. Mẫu biệt thự 2 tầng hiện đại dưới đây được thiết kế với những hình khối tinh tế, hệ thống lam và gạch thông gió trắng được sắp xếp khoa học nhưng vẫn đẹp mắt tạo không gian ngoại thất ấn tượng.


Bản vẽ mặt bằng tầng 1.

Bản vẽ mặt bằng tầng 2.

Bản vẽ mặt bằng tầng 2 tum.

2. Mẫu biệt thự mini 2 tầng mái bằng hiện đại với diện tích 100m2
Về kiến trúc ngoại thất, mẫu biệt thự 2 tầng mái bằng này được thiết kế theo phong cách hiện đại với những hình khối vững chắc, các đường nét và chi tiết được đơn giản hóa tạo sự khỏe khoắn, trẻ trung và nét độc đáo riêng.



Phần chân tường được ốp đá tự nhiên tối màu kết hợp với hệ thống cửa nhôm màu đen trên những mảng tường trắng tạo sự sang trọng cho mẫu biệt thự này.

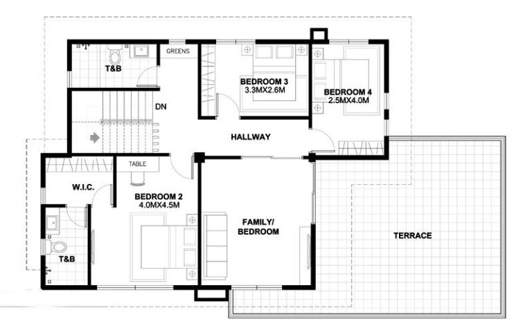
Mặt bằng công năng tầng 1 gồm: Phòng khách liên thông với khu vực nhà bếp và phòng ăn, 1 phòng ngủ + nhà vệ sinh riêng, 1 nhà vệ sinh chung.

Mặt bằng công năng tầng 2 gồm: 1 phòng ngủ chính có nhà vệ sinh cùng phòng xông hơi hiện đại, 2 phòng ngủ nhỏ, khu vực sinh hoạt chung, 1 nhà vệ sinh chung.
3. Biệt thự 2 tầng hiện đại diện tích 200m2 kèm bản thiết kế

Đây là mẫu biệt thự 2 tầng hiện đại, rộng rãi và có sân vườn bao quanh. Mặt tiền của biệt thự sử dụng tông màu trắng với những hình khối đua rộng ra vừa che mát được cho tầng 1 vừa tạo sự khỏe khoắn cho ngôi nhà.

Tầng 1 của biệt thự 2 tầng gồm: Phòng khách, bếp + phòng ăn, phòng ngủ + WC riêng, WC chung, gara.

Tầng 2 của biệt thự 2 tầng gồm: 1 phòng ngủ chính + WC, 2 phòng ngủ nhỏ + 2 WC riêng, phòng sinh hoạt chung.
4. Biệt thự 2 tầng hiện đại độc đáo với mặt tiền ấn tượng



Với mảng tường đá hình vòm màu nâu xám và những bức tường hình khối màu trắng, mặt tiền của ngôi biệt thự này trông nổi bật và gây ấn tượng mạnh cho người nhìn. Hệ thống tiểu cảnh được thiết kế ngay phía trước tạo ra không gian đẹp, xanh và tăng thêm sự hoàn hảo cho ngôi nhà.

Bản vẽ mặt bằng công năng tầng 1 gồm: Phòng khách, phòng ăn + bếp, phòng làm việc, phía sau nhà là sân vườn, gara.

Bản vẽ mặt bằng công năng tầng 2 gồm: 2 phòng ngủ, phòng sinh hoạt chung, sân phơi.
5. Biệt thự 2 tầng có sân vườn


Đây là mẫu biệt thự 2 tầng hiện đại, đẹp với kiến trúc độc đáo nhưng gần gũi với thiên nhiên.

Mặt bằng tầng trệt: Phòng khách, phòng thờ phòng bếp + phòng ăn, 1 phòng ngủ + WC riêng, WC chung.

Mặt bằng tầng 2: 3 Phòng ngủ, 2 WC, phòng sinh hoạt chung, ban công.
6. Biệt thự 2 tầng hiện đại 160m2


Chỉ với các mảng tường giật cấp, khoảng tiến lùi được tính toán khoa học kết hợp với phối màu tuyệt đẹp mang đến vẻ đẹp riêng cho ngôi biệt thự.

Bản vẽ mặt bằng tầng 1: 2 phòng khách, 2 phòng ngủ, gara, WC.

Bản vẽ mặt bằng tầng 2: Phòng thờ, phòng chiếu phim, 2 phòng ngủ rộng rãi, WC.
Học IT










Công nghệ
Microsoft Word 2013
Microsoft Word 2007
Microsoft Excel 2019
Microsoft Excel 2016
Microsoft PowerPoint 2019
Google Sheets
Lập trình Scratch
Bootstrap
Hướng dẫn
Ô tô, Xe máy