Dưới đây là 3 mẫu biệt thự 3 tầng 5 phòng ngủ, đẹp, hiện đại, thiết kế khoa học kèm theo bản vẽ, mời các bạn tham khảo để cho thêm gợi ý khi thiết kế ngôi nhà của mình.
Biệt thự mini 3 tầng hiện đại 5 phòng ngủ
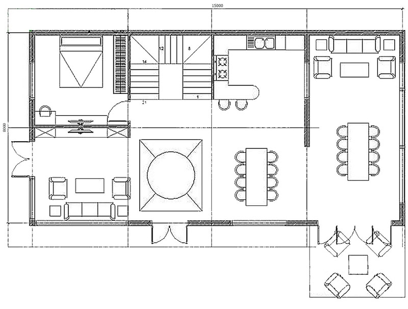
Mẫu biệt thự mini 3 tầng mái thái hiện đại được xây dựng với diện tích mặt sàn là 100m2 với mặt tiền thoáng rộng, hình khối kiến trúc hiện đại, có sân vườn, khối ban công đua rộng với lan can bằng kính cường lực hiện đại. Hệ thống mái là sự kết hợp giữa mái bằng và mái thái tạo điểm nhấn ấn tượng cho ngôi nhà.


Mặt bằng công năng tầng 1 gồm: Phòng khách, phòng ăn và bếp nấu, phòng sinh hoạt chung 1 phòng ngủ nhỏ và phòng vệ sinh chung.

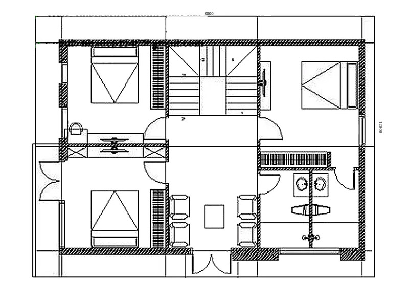
Mặt bằng công năng tầng 2 gồm: 1 phòng sinh hoạt chung, 1 phòng ngủ chính có nhà vệ sinh khép kín, 2 phòng ngủ, 1 nhà vệ sinh chung.

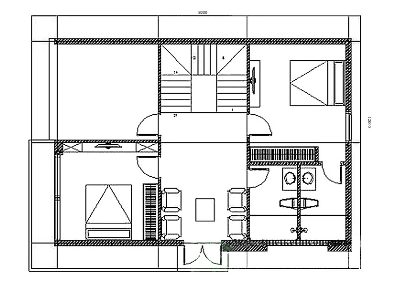
Mặt bằng công năng tầng 3 gồm: 1 phòng sinh hoạt chung, 1 phòng ngủ chính có nhà vệ sinh khép kín, 1 phòng ngủ, 1 nhà vệ sinh chung.

Mẫu biệt thự mini hiện đại 3 tầng 5 phòng ngủ
Đây là mẫu biệt thự 3 tầng 2 mặt tiền với thiết kế hiện đại, đồng bộ về sự liên kế về hình khối, hài hòa về màu sơn. Biệt thự được xây dựng trên đất nền không vuông nhưng các kiến trúc sư đã khéo léo xử lý khối và bố cục thông minh để hạn chế tối đa khuyết điểm này.

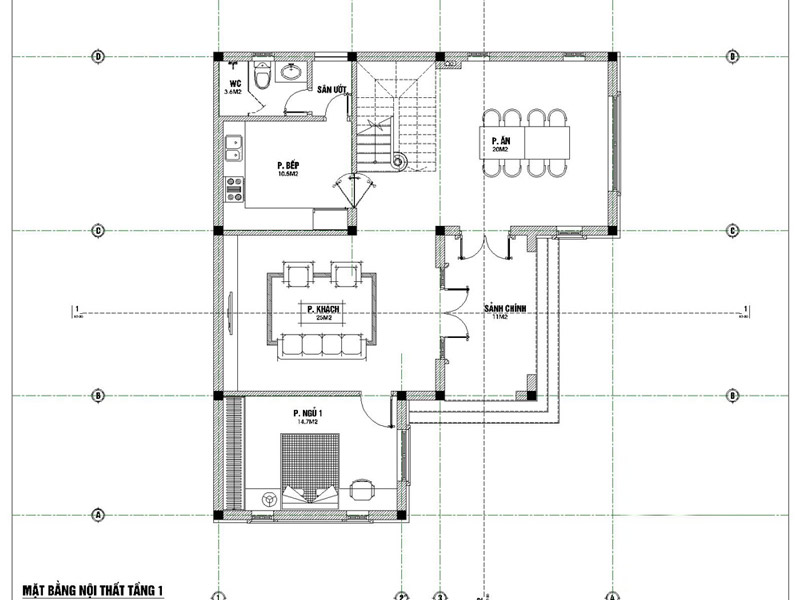
Mặt bằng công năng tầng 1 gồm: Phòng khách, 1 phòng làm việc, phòng ăn và bếp nấu, 1 phòng ngủ nhỏ và nhà vệ sinh chung.

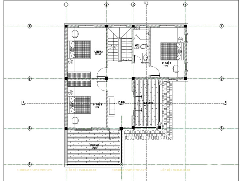
Mặt bằng công năng tầng 2 gồm: 1 phòng sinh hoạt chung, 3 phòng ngủ (1 phòng chính và 2 phòng nhỏ) đều có nhà vệ sinh khép kín.

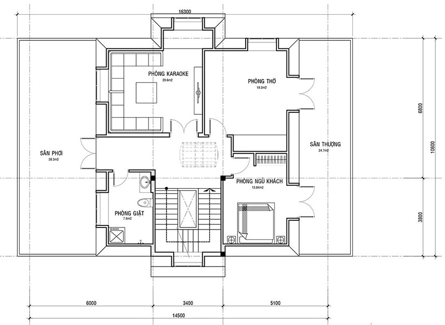
Mặt bằng công năng tầng 3 gồm: 1 phòng thờ, 1 phòng karaoke, 1 phòng ngủ cho khách, 1 phòng giặt + nhà vệ sinh chung.

Biệt thự 3 tầng 5 phòng ngủ phong cách hiện đại
Mẫu biệt thự 3 tầng 5 phòng ngủ hiện đại được xây dựng trên diện tích 130m2 (diện tích sàn 120m2) tập trung vào khắc họa hình khối khỏe khoắn, mạch lạc, tự do tạo nên sự sang trọng cho công trình.

Các phòng tầng 1 được thiết kế theo yêu cầu của gia chủ với kích thước phù hợp nhất cho mục đích sử dụng.

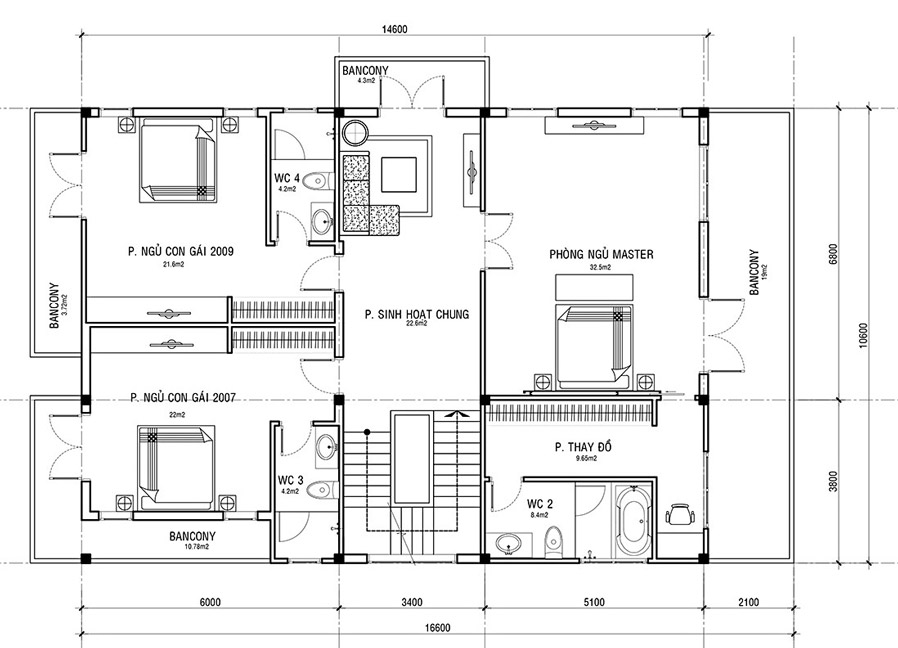
Các phòng ngủ trên tầng 2 được thiết kế với phòng ngủ thoáng rộng, có cửa sổ và ban công để lấy ánh sáng và gió tự nhiên.

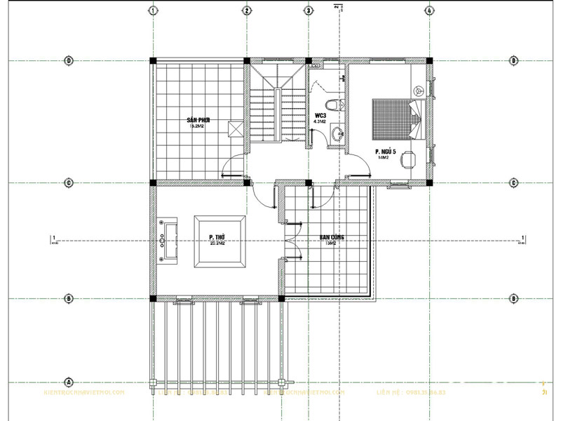
Tầng 3 gồm phòng thờ, 1 phòng ngủ cho khách, sân phơi và ban công rộng rãi.

Học IT










Công nghệ
Microsoft Word 2013
Microsoft Word 2007
Microsoft Excel 2019
Microsoft Excel 2016
Microsoft PowerPoint 2019
Google Sheets
Lập trình Scratch
Bootstrap
Hướng dẫn
Ô tô, Xe máy